Departamento en Lofty City Hub












Ciudad del Este, Paraguay
LOFTY CITY HUB NO SOLO ES UN EDIFICIO.
ES UNA DECLARACIÓN.
Un proyecto que rompe moldes, que redefine lo que significa vivir, trabajar e invertir en la ciudad.
No hablamos de metros cuadrados.
Hablamos de experiencias que mueven, de espacios que impulsan, de un hub que conecta ciudad, vida y oportunidades.
Lofty City Hub es el símbolo de una nueva generación de proyectos:
dinámicos, inspiradores,
sostenibles.
En el mundo inmobiliario marcar la diferencia genera retorno y verdadero valor.
Lofty City Hub no compite con lo tradicional: lo redefine.
LOCATION.
La ubicación no se negocia. Lofty City Hub está en el lugar donde todo pasa.
LAS PLANTAS COMERCIALES: UN HUB URBANO EN MOVIMIENTO
Las tres primeras plantas integran Lofty City Hub con la ciudad. Una plaza comercial de triple altura y paso peatonal abierto reúne bares, cafeterías, lavandería y gimnasio en seis locales premium: la primera experiencia de paseo urbano en Ciudad del Este.
En la planta 15, un centro de convenciones en doble altura, con nivel hotelero y vistas panorámicas, refuerza la competitividad de los alquileres temporales y atrae público todo el año.
El nivel 23 corona con el primer rooftop gastronómico de la ciudad: un restó-bar en doble altura que redefine la vida nocturna.
La primera experiencia de paseo urbano en Ciudad del Este.
Ascensores inteligentes y accesos electrónicos de última generación garantizan seguridad y fluidez.
Un ecosistema urbano que transforma la manera de vivir la ciudad.
DISEÑO CON PROPÓSITO. ARQUITECTURA QUE INSPIRA.
Lofty City Hub se organiza en bloques funcionales y complementarios, creando un edificio dinámico que integra ciudad, vida y experiencias.
Rooftop Gastronómico
Planta 23, doble altura
Primer restó-bar en altura de CDE.
Una experiencia urbana única para coronar el proyecto.
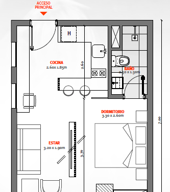
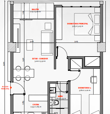
Departamentos de 40 y 60 m²
Plantas 16 a 22
Unidades ideales para Airbnb y alquiler temporario.
Tipologías que atraen tanto a residentes como a inversores.
Salón de eventos corporativo
Planta 15, doble altura
Espacio de nivel hotelero con vistas panorámicas.
Explotación comercial que suma rentabilidad y valor agregado.
Bloque Residencial
Monoambientes
Plantas 9 a 14
Continuidad de oferta versátil para alquiler o inversión.
Amenities disruptivos
Planta 8
Recording room, podcast room, coworking, chill room y más.
Diferencial frente al mercado local.
Bloque Residencial
Monoambientes
Plantas 4 a 7
Departamentos compactos y funcionales.
Alta demanda en alquileres jóvenes y temporales.
Bloque Comercial
Plantas 1 a 3
Plaza comercial con triple altura.
Bares, cafeterías, gimnasio, lavandería y servicios premium.
TIPOLOGÍAS
URBAN LIVING / ONE 23
Espacio diseñado para estudiantes, profesionales jóvenes y nómadas digitales.
Superficie de 23 m2.
Capacidad para 1 persona.
Full amoblado, con cocina, baño completo, placard.
Equipamiento: Cama 1.20, cortina, escritorio, silla y heladera.
Adicionales: Cerradura smart, aire acondicionado inverter.
URBAN LIVING / DUO
Espacio diseñado para estudiantes, profesionales jóvenes y nómadas digitales. Para una vida en pareja.
Superficie de 35 m2.
Capacidad para 2 personas.
Full amoblado, con cocina, baño completo, placard.
Equipamiento: Cama 1.60, cortinas, escritorio, sillas y heladera.
Adicionales: Cerradura smart, aire acondicionado inverter.
URBAN LIVING / SHARE
Espacio diseñado para estudiantes, profesionales jóvenes y nómadas digitales. Para una vida compartida.
Superficie de 35 m2.
Capacidad para 2 personas.
Full amoblado con cocina, baño completo, placard.
Equipamiento: 2 camas 1.00, cortinas, escritorio, sillas y heladera.
Adicionales: Cerradura smart, aire acondicionado inverter.
LOFTY SUITES / SUITE 1D
Proyectado cuidadosa y técnicamente para ofrecer un departamento en plataformas de alquileres temporales. Una unidad perfectamente pensada.
Superficie de 40 m².
Capacidad para 2 personas.
Full amoblado, con cocina, baño completo, placard.
Adicionales: Cerradura smart, aire acondicionado inverter.
Equipamiento: No incluye en el precio.
Una cochera.
LOFTY SUITES / SUITE 2D
Proyectado cuidadosa y técnicamente para ofrecer un departamento en plataformas de alquileres temporales. Una unidad perfectamente pensada.
Superficie de 60 m².
Capacidad para 4 personas
Full amoblado con cocina, baño completo, placard.
Adicionales: Cerradura smart, aire acondicionado inverter.
Equipamiento: No incluye en el precio.
Una cochera.
LOFTY SUITES / SUITE 2D
Proyectado cuidadosa y técnicamente para ofrecer un departamento en plataformas de alquileres temporales. Una unidad perfectamente pensada.
Superficie de 60 m².
Balcón.
Capacidad para 4 personas.
Full amoblado, con cocina, baño completo, placard.
Adicionales: Cerradura smart, aire acondicionado inverter.
Equipamiento: No incluye en el precio.
Una cochera.
UN EDIFICIO QUE PIENSA EN LA GENERACIÓN DE HOY
Recording Studio para creadores de contenido.
Podcast Room profesional, lista para transmitir ideas al mundo.
Cabinas temáticas para clases online, streaming o reuniones virtuales.
Coworking place, listo para un profesional moderno.
Study Center perfecto para enfocarse.
Chill Room para desconectar la mente y conectarse con uno mismo.
Sala de juegos para compartir y vivir en comunidad.
Livings al aire libre, para disfrutar de las vistas.
UN SET DE EXPERIENCIAS QUE NO EXISTE HOY EN EL MERCADO LOCAL
INVERTIR EN LOFTY
Ubicación privilegiada
Principal motor de plusvalía en real estate.
Revalorización asegurada
Edificios de vanguardia multiplican la demanda y el valor de los activos.
Tipologías exactas
Monoambientes para rentas largas y unidades diseñadas para rentas temporales y el más alto retorno.
Track record probado
Lofty Co Living, vendido al 100% en etapa de pozo, respalda la confianza en esta nueva propuesta.
UNIDADES EFICIENTES, ALTAMENTE RENTABLES Y LISTAS.
Cada departamento de Lofty City Hub nace de la combinación entre datos, análisis y experiencia, transformados en arquitectura inteligente. Espacios que maximizan metros, potencian la luz natural y priorizan la comodidad.
Invertí en departamentos amoblados y semi amoblados.
LOFTY CITY HUB ES PARTE DE UNA NUEVA GENERACIÓN DE INVERSIONES
Un proyecto diseñado para trascender y multiplicar valor.
Enfocado en el futuro, pero en el consumidor actual.
Es apostar por un modelo probado y ahora llevado a un nivel superior.
Invertí distinto, invertí Lofty.
Sencillamente distinto.
Forma de pago:
Entrega 20%
Financiamento hasta 30 meses
©2023







